Модернистская квартира с терраццо в Хошимине – проект Whale Design Lab - «Интерьер»
Двухуровневая квартира с терраццо, вдохновленная бетонными объемами американского архитектора Луиса Канна, неожиданно находится во Вьетнаме. Название проекта «Mai» – в переводе с вьетнамского «шлифовать», «полировать» – отсылает к тому, что истинная красота материала проступает после его ремесленной обработки. Работа над шлифовкой поверхностей в проекте длилась целых три года.
- Локация: Хошимин
- Площадь: 200 кв.м
- Авторы: Whale Design Lab
- Фото: Trieu Chien
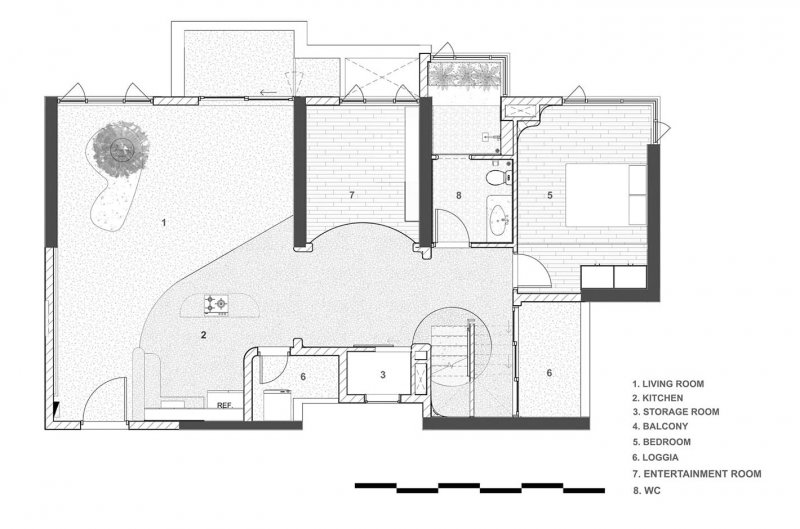
Вносить существенные изменения в планировку было невозможно, поэтому архитекторы сосредоточились на зонировании, рифмующихся формах и умеренной декоративности – связующим элементом для двух этажей стал терраццо из крупных кусков мрамора, который целиком покрывает кухню и «подиум» в гостиной, холл и лестницу на второй этаж. Выбор материала – реверанс в сторону терраццо любимого модернистами и очень модного в Сайгоне 50-60-х годов. В квартире нет острых углов, все проемы арочные, формы – обтекаемые. Основное помещение выполняет роли кухни и гостиной, в которую интегрирована «капсула» с рабочим кабинетом на втором этаже и обзорным окном-«иллюминатором».
Мы разбираем интерьеры - подробно! Чтобы вы могли лучше понимать, на чем строится хороший интерьер, чтобы учились у лучших. Подготовка такого материала требует времени, а интерьеров много. Помогите нам выбрать самые достойные - проголосуйте ЗА интерьер, если вам хочется увидеть его в расширенной публикации и узнать детали создания.












